73 m2 2-VÆRELSES LIEBHAVER-LEJLIGHED I ”BYENS HJERTE”TIL GÅGADEN. 2. sal. th., Søndergade 11, Silkeborg - Torben Larsen Ejendomme

2. sal. th.

2-VÆRELSES LIEBHAVER-LEJLIGHED I ”BYENS HJERTE”TIL GÅGADEN.

Søndergade 11, 8600 Silkeborg

  • Bolig
  • 73 m2
  • Udlejet

Vil du bo helt centralt på gågaden med dens aktive butikker og shopping-muligheder samt kun et stenkast fra Silkeborgs nye Torv, så se denne spændende 73 m2 - nymoderniserede 2. sals lejlighed på Søndergade 11.

Desuden kun få skridt til byens charmerende "latiner-kvarter" i Nygade med café-miljøer og speciel-butikker.

10 minutters gang til banegården med hurtig forbindelse til Herning(Ringkøbing) og Skanderborg/Aarhus.

Tæt på Silkeborg smukke natur med havnemiljøet, Indelukket, Remstrup å og Silkeborg Skovene, som giver mulighed for outdoor-aktiviteter som gåture, løb, cykling og sejlads. 

Aflåst, præsentabel opgang fører til lejlighedens entré/gang, som er udstyret med dørtelefon med automatisk døråbner, som sikrer opgangen mod uvedkommende færdsel.

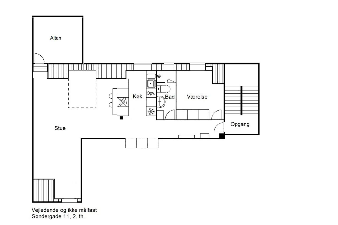
Spændende, ny-moderniserede 2. sals tag-lejlighed på 73 m2 med frilagte loftsbjælker og spændende åben planløsning.

Lejligheden har en kreativ indretning i lys og åben planløsning med køkken i åben forbindelse med den rummelige vinkelstue med de fritliggende loftsbjælker og loftet ført helt til kip.

Udgang til nyetableret sydvendt altan med dejlig udsigt.

Smart, rustikt køkken i rustfrit stål/træ med kogeø/emfang og bardisk i hårdt træ med 2 barstole.

Alt i hvide varer – herunder ny opvaskemaskine.

Hyggeligt soveværelse med 3 hvide garderobeskabe over hvilke der er indirekte LED-belysning med fjernbetjent farvevalg.  Desuden kommode og mørklægningsgardin.

Entréen har skab til overtøj samt stort, væghængt skoskab med indirekte underbelysning i LED.

Lækkert badeværelse med lyse vægge og mørke gulvklinker med behagelig gulvvarme.

Ny, smart firkantet håndvask – nedbygget i skabsmiljø med 2 skuffer.

Bruseniche med elegant glasdør.

Stålhylder til håndklæder m.v.

Lyse egetræsgulve overalt i lejligheden.

Nye termovinder.

Nyt køkken og badeværelse.

I stuen er der stort ovenlysvindue med 4 Velux-vinduer.

Rulle-gardiner eller Velux-gardiner i alle vinduer.

Foruden egen altan er der adgang til hyggelig, lukket gårdmiljø med adgang til fælles solterrasse på taget af garager.

Vaskeri med vaskemaskine og tørretumbler.

Aflåst cykelrum.

Mulighed for leje af garage eller køb P-kort til gården.