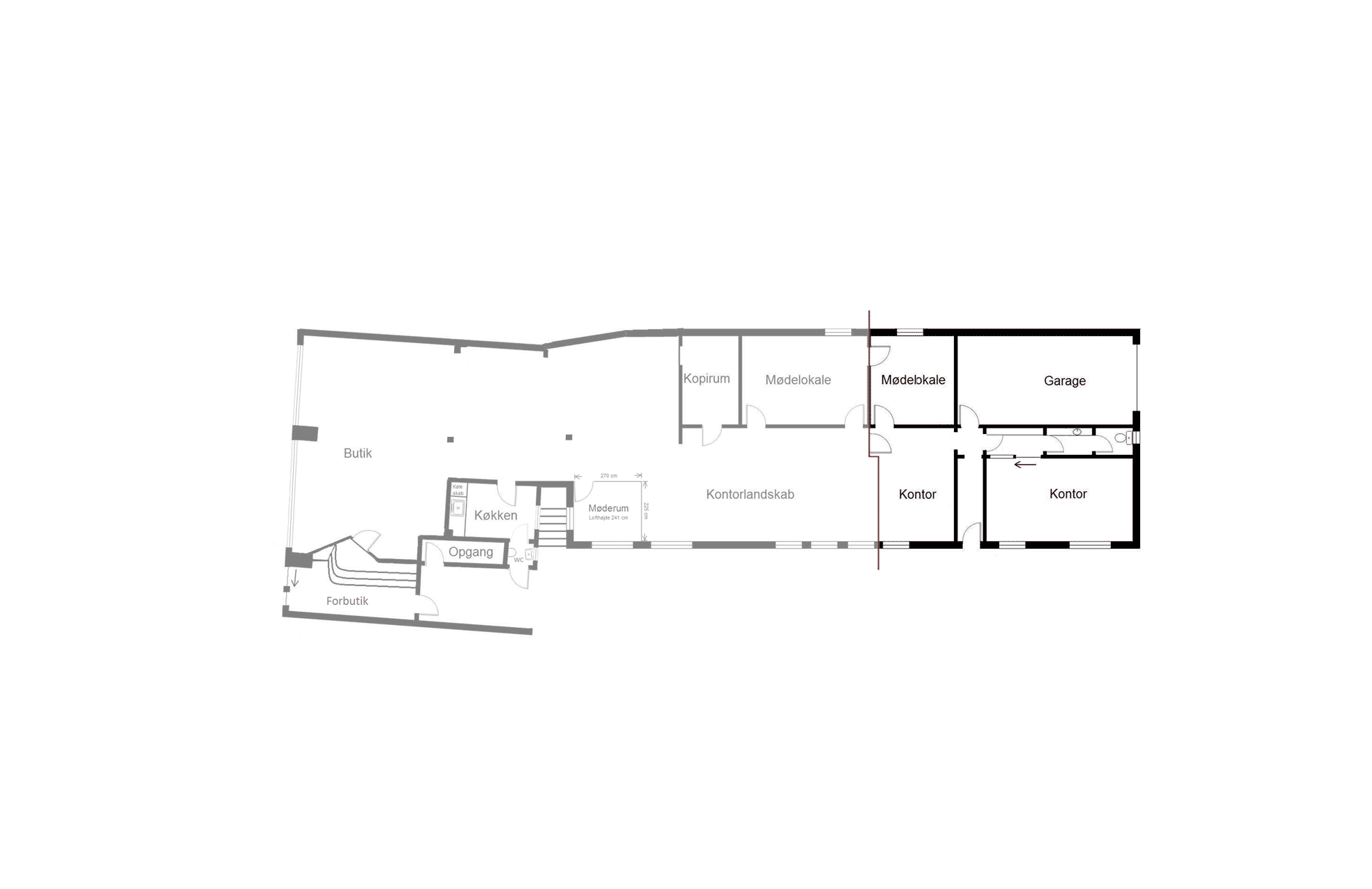
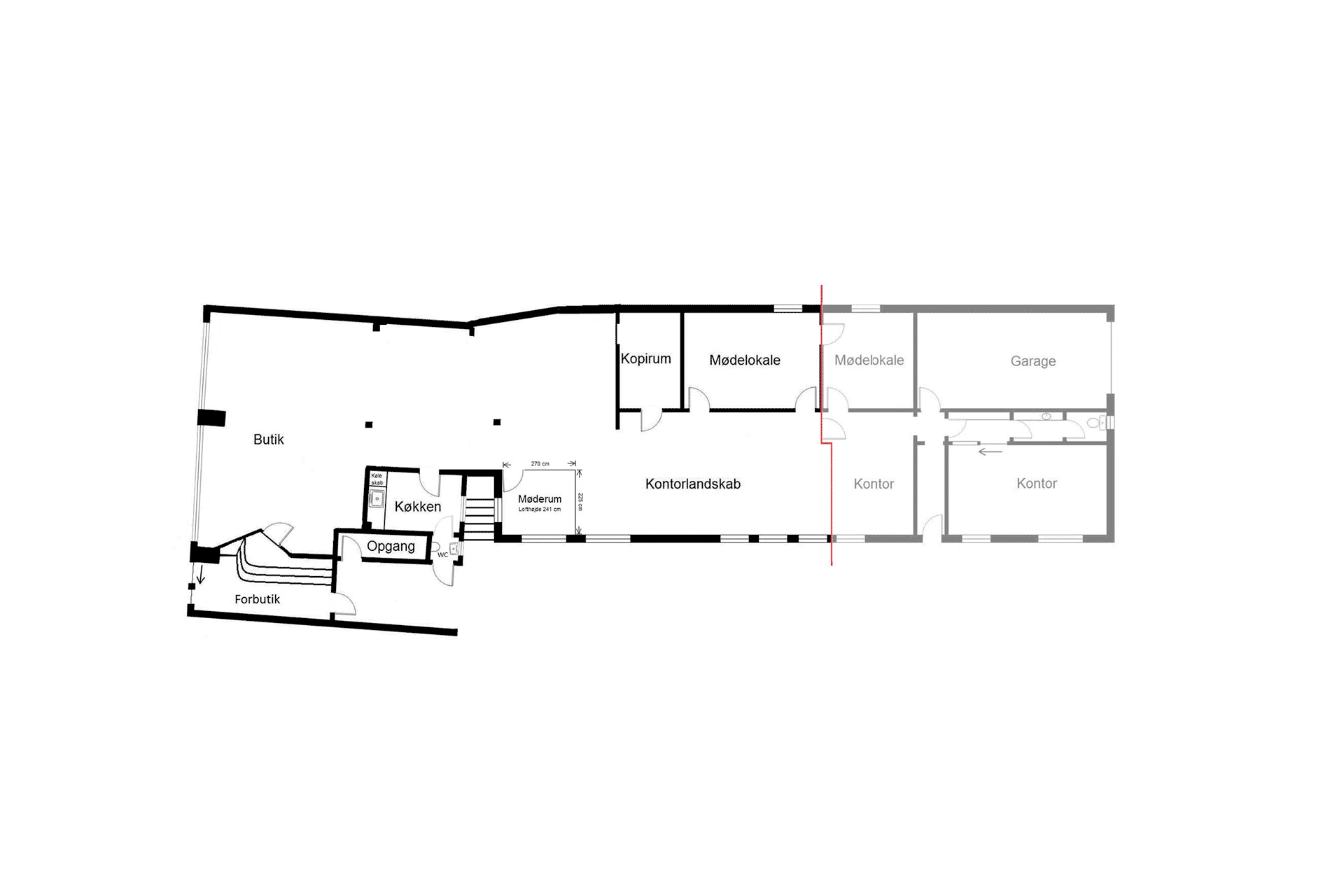
- Butik, Erhverv, Kontor
- 300 m2
- Udlejet
Stuen for
300 M2 FORRETNINGSLOKALE - FACADE BEÆRDER INDFALDSVEJ - PARKERING
Forretningslokale/butik med meget stor synlighed mod Frederiksberggade en af byens mest befærdede...
Læs mere...
8600 Silkeborg
Frederiksberggade 11 består af et forhus samt en bagved liggende tilbygning.
Forhuset er 1918 opført i 3 etager med fuld kælder og indeholder 2 erhvervslejemål og 2 boliger.
Ejendommens facade er i mod gaden er udført i teglsten, som er pudset og malet – taget er udført i eternti.
Tilbygningen er opført 1972 og har ydermure i røde teglsten og tag i built-up-konstruktion.
Bag ejendommen er større parkeringsgård samt en carport.
Området er centralt i Sydbyen - kun 5 minutters gang til banegården med hurtig forbindelse til Herning(Ringkøbing) & Skanderborg/Aarhus.
Tæt på Silkeborg smukke natur med lystbådehavnen "Indelukket", Remstrup å og Silkeborg Skovene med mulighed for outdoor-aktiviteter som gåture, løb, cykling og sejlads.
Også kun få minutters gang til gågade-systemet med aktive butikker/shopping-muligheder samt Nygade/Tværgade - byens charmerende "latiner-kvarter" - med café-miljø og speciel-butikker.
Få minutters gang til 2 store dagligvarebutikker.
Området:
Frederiksberggade. Iht. bogen "Gader og Veje i Silkeborg" skrevet af G. Nørgaard Jepsen, menes oprindelsen til navnet og dermed benævnelse af hele bykvarteret at stamme fra to silkeborgensere som havde været i København og efter hjemkomsten mente, at der var lighedspunkter mellem den københavnske bydel, Frederiksberg, og kvarteret syd for banen i Silkeborg.
Bygningen:
Iht. bogen "Fotografiske øjeblikke" skrevet af Erik Vinther Andersen og Lis Thavlov, hvorfra det gamle billede også stammer, opførte slagtermester Theodor Jensen dette oprindelige 2-familiehus i 1920, fra hvilken han samtidigt kunne åbne sin fine butik.
I en sidebygning indrettede han endvidere et pølsemageri, hvor der produceres varer til videreforhandling.
Efterfølgeren Edvard Pedersen udvidede butiksarealet i 1968-69.
I 1985 blev slagterbutikken ombygget til brug for en ejendomsmægler.
Samme år blev ejendommen til venstre nedrevet og erstattet af det nuværende boligbyggeri.





300 M2 FORRETNINGSLOKALE - FACADE BEÆRDER INDFALDSVEJ - PARKERING
Forretningslokale/butik med meget stor synlighed mod Frederiksberggade en af byens mest befærdede...
Læs mere...
65 M2 FORRETNINGSLOKALE - PARKERING
Forretningslokale ved Frederiksberggade med egen parkering(carport).
Få minutters gang til...
Læs mere...
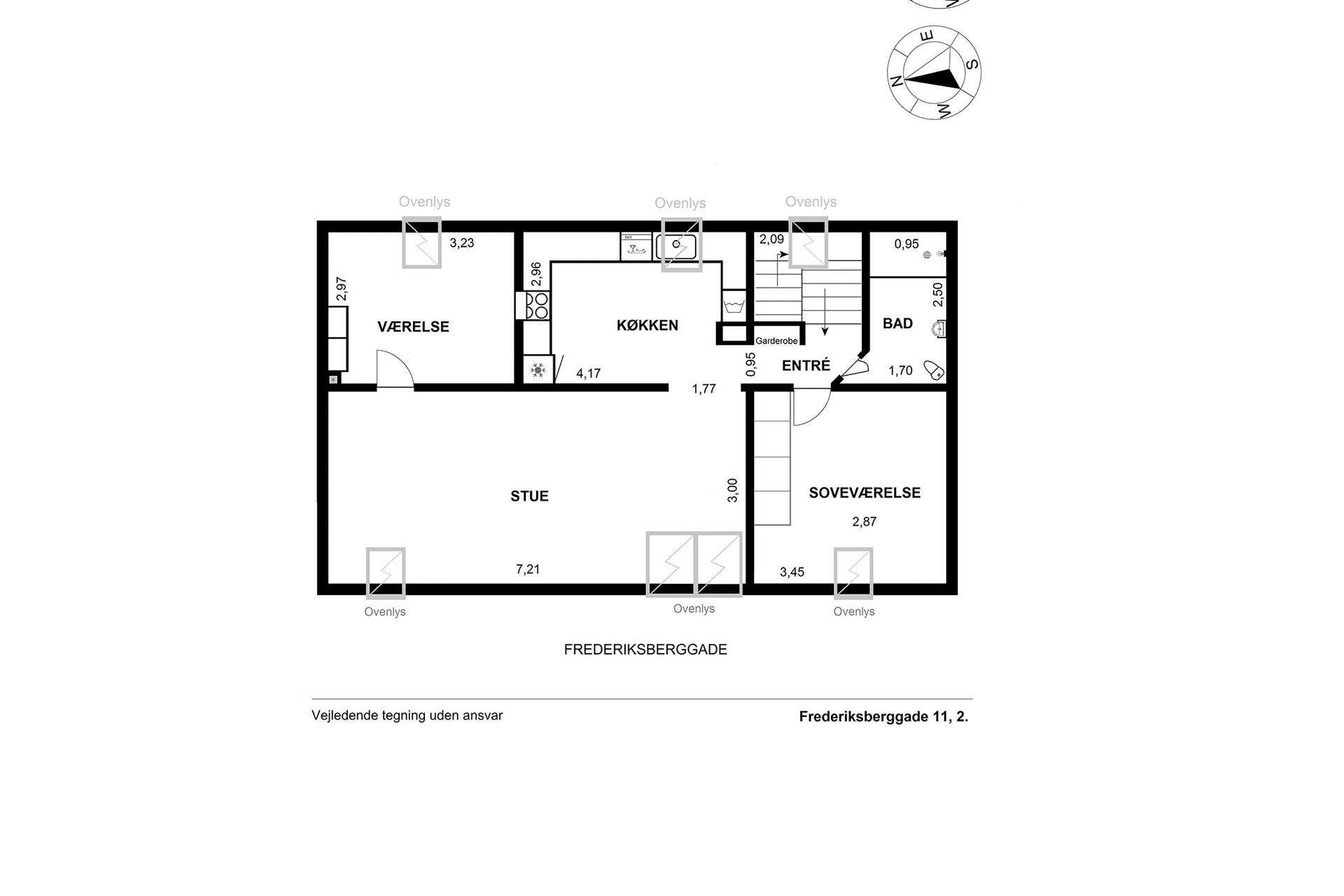
3-VÆRELSES LEJLIGHED I SYDBYEN - KÆMPE SOLTERRASSE - EGEN P-PLADS
108 m2 unik og velbeliggende 1. sals lejlighed i præsentabel ejendom med centralt beliggenhed i d...
Læs mere...
3-VÆRELSES LEJLIGHED I SYDBYEN - EGEN P-PLADS
65 m2 velbeliggende 2. sals tag-lejlighed i præsentabel ejendom med centralt beliggenhed i den at...
Læs mere...
Dette website benytter cookies. Læs mere. Ok, forstået.